Skip to content
Home
About Us
Residential ▼
Custom Homes
Home Renovation
Kitchen Renovation
Home Building Process
Commercial
Our Work ▼
Projects & Plans
Gallery
Reviews
Contact Us
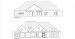
The Heritage
Sparks Construction Lake City, Florida
>
Featured Project
>
The Heritage
Project Description
Model
: The Heritage
Location
: Florida
Area
: 4599 sq ft
Floor Plan