Skip to content
Home
About Us
Residential ▼
Custom Homes
Home Renovation
Kitchen Renovation
Home Building Process
Commercial
Our Work ▼
Projects & Plans
Gallery
Reviews
Contact Us
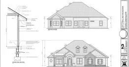
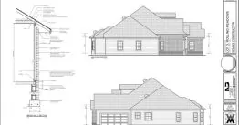
The Stratton
Sparks Construction Lake City, Florida
>
Featured Project
>
The Stratton
Project Description
Model
: The Stratton
Location
: Lake City, Florida
Area
: 3073 sq ft
Floor Plan